Immobili in Vendita
Sono stati trovati 35 immobili
Ordina per:
Se stai cercando una casa o un appartamento in vendita, Cercocasa è al tuo fianco. Offriamo un'ampia gamma di immobili residenziali e commerciali, con soluzioni su misura per ogni esigenza.
Dai un'occhiata alle nostre proposte o chiamaci per maggiori informazioni.
€ 165.000
Cavriago
Rif Cvg07 - **Appartamento in Vendita a Cavriago - Un'Oasi di Comfort e Stile**La Cercocasa di Montecchio Emilia propone splendido appartamento al quarto piano con ascensore, situato in una palazzina immersa nel verde e a pochi passi dal centro di Cavriago. L'ingresso conduce a un'ampia e luminosa sala, perfetta per accogliere amici e familiari. Da qui, si accede a un comodo balcone, ideale per godersi momenti di relax all'aperto. La cucina abitabile è spaziosa e funzionale, perfetta per preparare deliziosi pasti.L'area notte è ben separata e comprende due camere da letto, una matrimoniale e una mezz...



€ 250.000
Bibbiano
Rif Bn002 - **Casa indipendente in Vendita a Bibbiano - Un'opportunità unica! **La Cercocasa di Montecchio Emilia propone splendida soluzione indipendente di recente costruzione, perfetta per chi cerca spazio e comfort. Disposta su due livelli, questa casa offre la possibilità di ricavare due appartamenti, ideale per famiglie numerose o per chi desidera un'ottima opportunità di investimento. Al primo piano, una ampia e luminosa sala con camino accoglie gli ospiti, mentre la cucina abitabile è perfetta per preparare deliziosi pasti in compagnia.La zona notte è ben separata, con tre camere da letto...



€ 120.000
Montecchio Emilia
Rif Mn016 - **Appartamento su Due Piani in Vendita a Montecchio Emilia**La Cercocasa di Montecchio Emilia propone maisonette su due livelli, situata al secondo e ultimo piano di un condominio esclusivo di sole 6 unità abitative. Nel cuore di Montecchio Emilia, questa proprietà offre un perfetto equilibrio tra comfort e funzionalità. Al primo livello, la zona giorno accoglie con una luminosa sala e un angolo cottura ben attrezzato, ideale per momenti di convivialità. Un bagno completo con doccia completa il piano, rendendo tutto estremamente pratico.Salendo la scala interna, si accede al secondo liv...



€ 95.000
San Polo d'Enza
Rif Mn015 - **Appartamento in Vendita: Un Angolo di Paradiso nel Verde**La Cercocasa di Montecchio Emilia propone appartamento al primo piano, situato in una palazzina immersa nel verde, ideale per chi cerca tranquillità e comfort. L'ingresso si apre su un'ampia sala luminosa, perfetta per accogliere amici e familiari. Il comodo balcone è l'ideale per posizionare un tavolino e sedie, dove poter gustare una colazione all'aperto o semplicemente rilassarsi con un buon libro.La cucina, un pratico cucinotto, è funzionale e ben attrezzata. La zona notte è separata da un disimpegno, garantendo privacy e t...



€ 125.000
Bibbiano
Rif Bni39 - **Terreno Edificabile in Vendita - Un'Opportunità Unica! **La Cercocasa di Montecchio Emilia propone ampio terreno edificabile di 4.500 mq, situato in una zona immersa nel verde e caratterizzata da tranquillità e silenzio. Con una superficie utile di 200 mq, hai la possibilità di costruire la villa dei tuoi sogni, con opzioni di progettazione su due livelli o su un unico piano. Immagina una casa con una spaziosa sala, una cucina accogliente, disimpegno, tre camere da letto matrimoniali e due bagni, perfetta per vivere in armonia con la natura.Il terreno offre anche un ampio giardino priv...



€ 160.000
Montecchio Emilia
Rif Mn014 - **Appartamento in Vendita a Montecchio Emilia**La Cercocasa di Montecchio Emilia propone splendido appartamento completamente ristrutturato, situato al secondo piano di una piccola palazzina di sole 6 unità. Con un ingresso ampio e accogliente, la zona giorno si distingue per la sua luminosa sala, perfetta per momenti di relax e convivialità. Il comodo balcone offre uno spazio all'aperto ideale per godersi il sole. La cucina abitabile è perfetta per chi ama cucinare e intrattenere.L'appartamento vanta due ampie camere da letto matrimoniali, ideali per riposare e ricaricarsi. Il bagno, co...



€ 155.000
Bibbiano
Rif Cvg05 - **Terreno in Vendita a Bibbiano - Un'Occasione Unica! **La Cercocasa di Cavriago propone terreno edificabile di 1.048 mq, situato in una tranquilla via chiusa nel cuore di Bibbiano. Con una superficie utile di 345,83 mq, hai la possibilità di costruire la villa dei tuoi sogni, sia come villa singola che abbinata. La posizione è ideale, a pochi passi dal centro città, ma immersa in un contesto residenziale sereno e circondato da ville di recente costruzione.Questo terreno già edificabile deve solo essere urbanizzato ed offre tutte le comodità necessarie: acqua, luce, rete fognaria e gas...

€ 87.000
Bibbiano
Rif Mci55 - **Appartamento in Vendita a Bibbiano**La Cercocasa di Montecchio Emilia propone appartamento completamente ristrutturato, situato al secondo ed ultimo piano di uno stabile con sole due unità abitative. Senza spese condominiali, questo immobile offre un ampio ingresso che conduce a una zona giorno accogliente, perfetta per momenti di relax e convivialità. La cucina separata, un vero e proprio cucinotto, è ideale per chi ama cucinare in libertà.Con una superficie commerciale di 90 m² e calpestabili di 80 m², l'appartamento dispone di due spaziose camere da letto matrimoniali e un comodo...



€ 70.000
Cavriago
Rif Cvg02 - **Casa Indipendente da Ristrutturare nel Cuore di Cavriago**La Cercocasa di Cavriago propone casa indipendente situata nel cuore di Cavriago, perfetta per chi desidera personalizzare il proprio spazio abitativo. Distribuita su tre livelli, offre ampie possibilità di ristrutturazione secondo i tuoi gusti. Al piano terra troverai una sala accogliente, un cucinotto funzionale e un bagno. Una scala interna conduce al piano interrato, dove si trova una spaziosa cantina ideale per conservare vini o oggetti personali.Al primo piano, una camera da letto matrimoniale con balcone ti regalerà moment...



€ 750.000
Montecchio Emilia
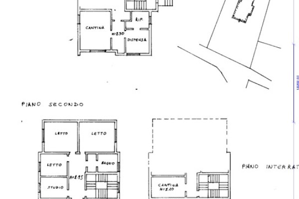
Rif Mn012 - **Splendida Villa Singola Immersa nel Verde a Montecchio Emilia**La Cercocasa di Montecchio Emilia propone magnifica villa singola situata in una zona tranquilla e verdeggiante, con affaccio su un parco e a pochi passi dal centro di Montecchio Emilia. La proprietà si sviluppa su tre livelli, offrendo ampi spazi e comfort moderni. Al piano terra, l'ingresso si apre su una luminosa sala, seguita da una cucina abitabile e una camera matrimoniale con bagno completo. La zona notte al primo piano include una camera matrimoniale con bagno privato dotato di vasca idromassaggio e una cabina armadio...


