-
Superficie
350 mq
-
Camere
5
-
Bagni
3
-
Locali
10.0
-
Posto auto
Sì
Descrizione
**Villa singola di Nuova Costruzione in Vendita**
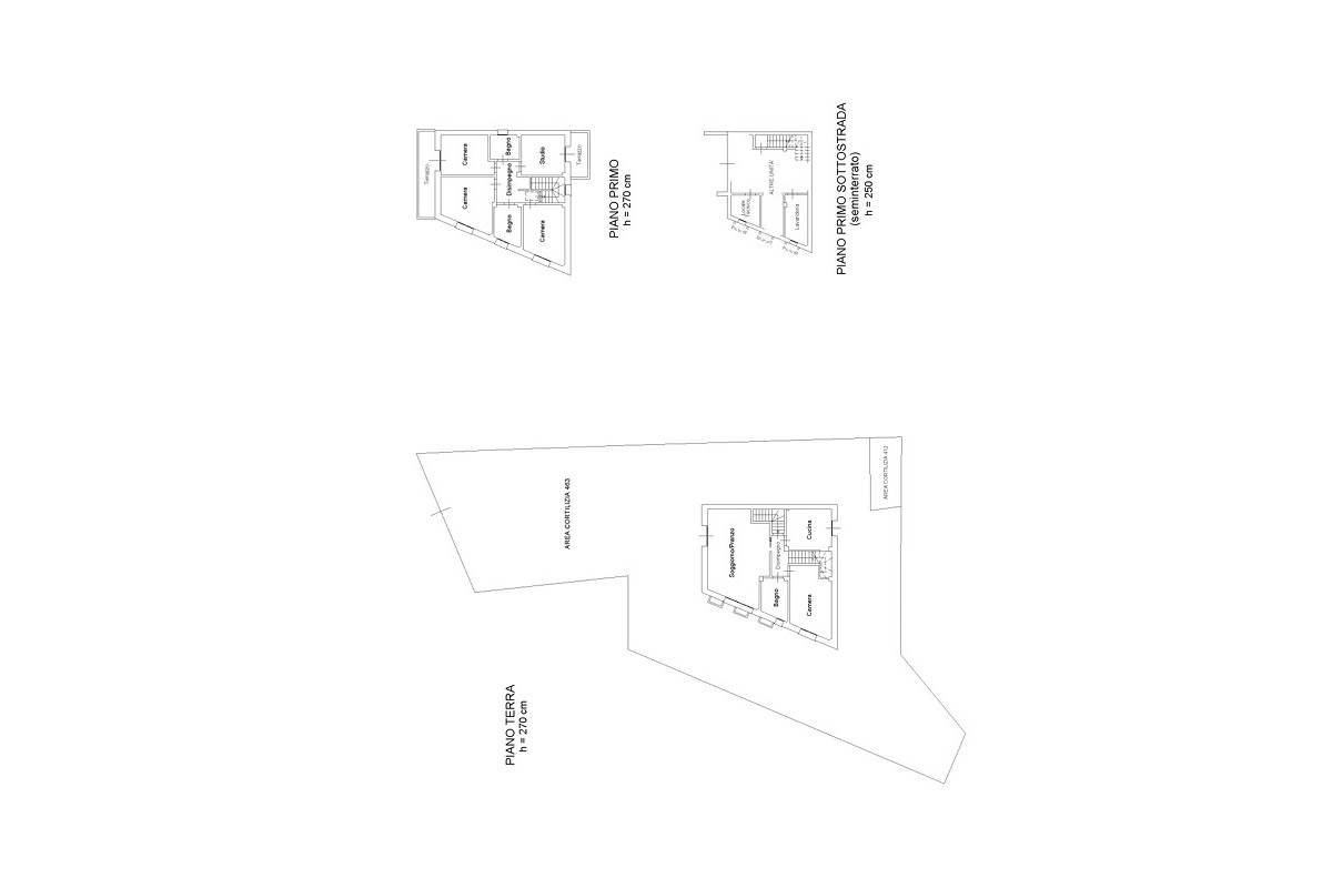
La Cercocasa di Montecchio Emilia propone splendida casa singola di nuova costruzione, costruita nel 2022, situata in una zona immersa nel verde e caratterizzata da tranquillità e comfort. Con una superficie commerciale di 450 m² e 240 m² calpestabili, questo immobile si sviluppa su tre livelli, offrendo ampi spazi per vivere al meglio ogni momento della giornata. Il piano interrato ospita un ampio garage con accesso diretto all'abitazione, accessibile dal cortile privato, una cantina, un locale tecnico dove si trovano gli impianti dei pannelli solari e l'addolcitore e una lavanderia completa di sanitari, rendendo la vita quotidiana ancora più comoda.
Al piano terra, un'accogliente zona giorno ti accoglie con un ingresso luminoso, un'ampia sala che si affaccia sul giardino privato e una cucina abitabile con accesso diretto all'esterno. Qui trovi anche una camera da letto matrimoniale e un bagno completo di sanitari e vasca da bagno. Salendo al primo piano, la zona notte è composta da quattro camere da letto, due matrimoniali (una con balcone), una tre quarti e una mezza camera (sempre con balcone), oltre a due bagni moderni con doccia.
Le finiture di pregio, come i pavimenti in gres porcellanato e gli infissi in PVC con vetro doppio, conferiscono eleganza a ogni ambiente. La casa è dotata di riscaldamento a pavimento e aria condizionata con pompa di calore, garantendo il massimo comfort in ogni stagione. Inoltre, i pannelli fotovoltaici assicurano un'efficienza energetica eccezionale, con una classe energetica A4 e un consumo di soli 21,87 kWh/m² all'anno. Non perdere l'occasione di vivere in questa meravigliosa casa, perfetta per famiglie che cercano spazio e tranquillità!
Riferimento immobile Vr001.






























































